收藏本站| 欢迎收藏LED之家,LED之家是国内LED行业信息最全面的门户网站之一。
首页
登录免费注册一个新账号
我的账号
广州国际照明展览会(光亚展)
首页 》LED之家 》LED照明 》深圳交易所广场的智能照明设计 点击:769    LED知识讨论发表新主题
LED之家   永久地址:www.ledjia.com

  照明设备  流器  智能照明  高工  设备  新技术  传感器  节能  工程  模块  灯具  中国  公司  夜景  照明技术  多功能  音响  效率  设计  灯光

深圳交易所广场的智能照明设计

LED之家  于2013-12-15 22:21:02  http://www.ledjia.com/ledhangye/viewarticle.php?id=9772

文章摘要:  0 引言   当前,随着世界经济和高新技术的不断发展。人们对生活环境的要求越来越高。对于建筑而言,除去传统的要求外,人们对其安全性、舒适性、节能性、自动化与信息化等方面均提出更高的要求。以建筑照明为例。目前绝大多数建筑仍然采用传统的开关控制方式,部分的智能大厦采用楼宇自控( BA) 系统来监控照明。但也只能实现简单的区域照明和定时开关功能,不能实现调光控制、场景控制、感应控制等功能。   1 智能照明   智能照明是指利用计算机、无线通信数据传输、扩频电力载波通信技术、计算机智能化信息

  0 引言
  当前,随着世界经济和高新技术的不断发展。人们对生活环境的要求越来越高。对于建筑而言,除去传统的要求外,人们对其安全性、舒适性、节能性、自动化与信息化等方面均提出更高的要求。以建筑照明为例。目前绝大多数建筑仍然采用传统的开关控制方式,部分的智能大厦采用楼宇自控( BA) 系统来监控照明。但也只能实现简单的区域照明和定时开关功能,不能实现调光控制、场景控制、感应控制等功能。
  1 智能照明
  智能照明是指利用计算机、无线通信数据传输、扩频电力载波通信技术、计算机智能化信息处理及节能型电器控制等技术组成的分布式无线遥测、遥控、遥信控制系统,来实现对照明设备的智能化控制。具有灯光亮度的强弱调节、灯光软启动、定时控制、场景设置等功能; 并达到安全、节能、舒适、高效的特点。
  目前智能照明的技术主要包括: 电力载波技术; 总线技术; 无线通信技术。欧洲安装总线 ( European Installation Bus,EIB) 是目前用于智能建筑领域的一种标准的总线控制系统,具有分布性、开放性、可靠性、安全性和灵活性的优点。现在中国市场上,主要有西门子公司的 Instabus EIB 和 ABB 公司推出了i-busEIB 两种楼宇智能控制系统。
  2 应用实例
  下面结合实际的工程案例来具体说明,i-busEIB 楼宇智能控制系统在深圳交易所广场智能照明设计中应用。
  2.1 工程概况
  该建筑物位于广东省深圳市。建筑高度245. 8 m,面积约 26. 7 万 m2,是一所多用途的金融办公大楼,属特级建筑。地下共三层,主要为车库,其中地下三层为附建式人防地下室,共两个防护单元。地上部分共 46F,16F 和 32F 为避难层。其中 15F以下为深交所自用; 17F ~43F 为出租办公层,44F ~46F 为会所。对所有自有用办公室、东西南大堂、会议室等场所的照明系统进行集中控制与管理,实现照明自动控制、节能、人性化操作、提高物业管理水平等功能。
  智能照明控制系统在控制方面必须满足节能、绿色的要求,采用智能化、集成化的解决方案,以便于管理及营造不同的工作氛围,同时达到节能的目的。
  多功能集成控制: 灯光控制、玻璃隔断卷帘控制、窗帘控制。
  控制方式多样: 现场智能面板、人体感应( 移动探测) 、光线感应( 光亮传感器) 、遥控、远程网络控制、定时控制。
  2.2 i-bus EIB 系统
  ABB i-bus 系统是一套基于 EIB 总线标准的智能控制系统,以弱电总线通讯的方式控制强电末端设备。主要功能为灯光控制、窗帘控制、安全防范、AV 设备及HVAC 设备控制等,可对灯光进行各种控制如: 开关控制、调光控制、分散集中控制、远程控制、延时控制、定时控制、光线感测控制、红外线遥控、移动感测控制、与其他设备系统的联动控制等,控制方式方便、灵活、易于修改、易于操作、易于维护。随着世界经济于高新技术的不断发展,人们对生活环境的要求越来越高。除去对建筑的传统要求外,在建筑的安全性、舒适性、节能性、自动化与信息化等方面均提出更高要求,其目的是创造出舒适宜人,能充分提高工作效率而又具有极大灵活性的办公与生活环境。
  2.3 系统总体构成
  (1) 系统结构采用分布总线式结构,系统内各智能模块不依赖于其他模块而能够独立工作,模块之间应是对等关系。当管理系统主机或服务器故障时,系统的控制模块不受影响,仍能按照事先编制好的程序独立运行。
  (2) 系统采用两层总线型的网络拓扑结构,管理层干线使用物业测控局域网,现场灯光控制总线采用 EIB 总线,EIB 总线不跨越楼层。
  (3) 系统应具有可扩展性,针对于功能的增加或控制回路、电器的增加,只需增加挂接相应的模块,系统内原有的硬件、接线不须改动,便能达到要求。
  2.4 具体实现
  根据不同房间的功能要求及投入运营后的实际使用情况,对应的智能照明控制系统策略如下:
  2.4.1 采用单灯单控( 要调光) 的方式
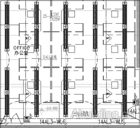
  主要范围包括: 9F 办公室,高管层( 11F ~15F) 办公室等。在需要进行单灯单控的场合,相关灯具采用数字可寻址灯光接口调光镇流器( 支持 DALI 协议) 。控制方式主要包括智能面板控制、人体感应控制、上级控制器等。人体感应主要通过在办公室内安装移动探测,做到人走灯灭。相关的平面详见图 1。

图1 平面图
  2.4.2 采用回路调光控制的方式
  主要范围包括:8F 大讲堂、上市大厅、电教室、9F ~ 15F 的会议室等。在需要回路调光控制的场合,相关灯具采用带模拟量调光镇流器,通过 i-bus系统中的调光驱动模块 SD,实现回路调光、场景设置等。SD 模块具有手动按钮、预设等功能。每一个回路能同时被3 个8 bit 的场景调用。且有64 个场景可选,1-10V DC 信号。控制方式主要包括智能面板控制、上级控制器等。为了配合灯具带的模拟量调光镇流器,除模块的出线外,需另加调光信号线。相关的系统图详见图2。

图2 系统图
  2.4.3 采用回路集中控制( 不调光) 的方式
  主要范围包括: 1F/2F 层大厅、11F 以上的小办公室等。1F/2F 层大厅的灯光在控制时,还需配合光线感应器工作,根据自然光的照度控制灯光及遮光系统; 夜间灯光调至夜景模式,与大楼室外灯光组合,形成特定灯光的效果,午夜后切换到夜间模式,只保留必要的照度。本种控制方式无需调光,采用开关驱动模块 SA,对灯具进行开闭控制。SA 模块具有延时、预设、闪烁等功能。每一个回路能同时被 5 个 8 bit 的场景调用。且有64 个场景可选。
  2.4.4 其他方式
  考虑到实际使用情况,卫生间、茶水间及其他的设备房间采用传统的就地翘板开关控制方式。
  2.4.5 注意事项
  (1) i-bus 系统的支线最多支持 64 个总线原件。且每条支线实际所能连接的设备数取决于所选电源的容量和支线原件的总容量。设计时还要考虑到有一定的裕量以便将来系统的扩容和调整。
  (2) 根据实际照明回路的电流大小选择合适的智能照明模块。SA、SD 模块均有6 A和10 A两种电流等级的选择。
  (3) 不同的区域选用合适的感应探测器。
  2.5 智能照明控制管理软件
  采用独立的中央控制平台,可以中文、图形化的界面对整个灯光控制系统进行中央显示、控制。进行整个系统中每一个照明回路的时间程序或逻辑条件动作设定,工作状态显示,回路电流实时显示。能对回路运行时间累计显示,以便及时更换维修。能对每一个回路开关进行应急锁定,解锁。若有光源损坏,回路断电故障,系统故障,可实时具体显示及报警。软件使用 OPC SERVER 数据接口,与其他系统( 如 BMS、安保、消防报警等) 方便地集成,实现照明回路与其他系统的控制联动。
  2.6 智能照明控制管理软件
  智能控制系统可自成体系,系统协议具有开放性,可通过软件方式与 IIS系统互联; 同时也可通过硬件结点信号与消防、安保等系统进行连接。
  2.6.1 与智能化集成系统及其他系统的连接
  系统在保证独立运行的同时可通过标准TCP / IP 协议和网关接口或采用标准 OPC 软件接口就可以同整个大楼的 IIS 系统,或上层管理平台 IIS 服务器和其他系统进行数据交换和共享。
  2.6.2 与其他系统的联动
  系统可以通过系统输入元件,接受其他系统或工作人员发出的干结点信号、交直流信号,实现消防系统、安保系统、音响系统、会议系统的联动,使控制的灯光或设备进行及时变化。
  3 结语
  近年来,EIB 总线技术作为一种比较先进的智能照明技术,已经越来越多地使用在国内各类公共建筑中。随着人们对于建筑的的信息化、智能化、,绿色化要求日益提高,EIB 总线技术以其巨大的优越性,必将得到更加广泛的应用。

LED之家小提示:若文章图片无法显示,又急需查看图片,请将需求文章的网址发往邮箱:wantled@163.com ,本站将尽快将相关图片回复到您的邮箱。



相关词语:  照明设备  流器  智能照明  高工  设备  新技术  传感器  节能  工程  模块  灯具  中国  公司  夜景  照明技术  多功能  音响  效率  设计  灯光

LED之家永久地址:www.ledjia.com
首页 -- 联系我们 -- 使用帮助 -- 收藏本站 -- 设为首页

Copyright ? 2008~2026 www.ledjia.com. All Rights Reserved.  [ 粤ICP备05006808号 ]  版权所有: LED之家.